Ruusupuusta myös pihasuunnitelmat
Hei! Olen Laura, pihasuunnittelija ja visualisti. Teen Ruusupuussa pihasuunnitelmia - pieniä ja suurempia. Olisi kiva luoda Sinulle viihtyisä piha, jossa on hyvä olla.
Haluan suunnitella Sinulle…
- Pihan, joka on toimiva ja käytännöllinen
- Silmiä hivelevän, kauniin kokonaisuuden
- Monipuolisen, kohteeseen sopivan kasvivalikoiman
- Tarpeisiisi sopivan, helposti hoidettavan tai haasteita sisältävän pihan
- Budjettiisi sopivan pihan
Voit rakentaa pihan itse (laadin tarvittaessa ohjeet) tai teettää työn viherrakentajalla. Pihasuunnitelma voi olla kevyempi luonnos (jos rakennat pihan itse) tai tarkempi yleissuunnitelma (viherrakentajaa varten).
Taustatiedoksi tarvitsen:
- Lisätietoa toiveista- Asemapiirroksen sähköisenä tai paperisena (tärkein!)
- Rakennusten pohja- ja julkisivupiirrokset
- Nykyiset kaapeli-, salaoja- ja sadevesiviemäriverkostot
- Korkeusasemat (ei luonnokseen), tarvittaessa pihaan voidaan tilata mittaus
- Budjetin
Näin suunnitteluprosessi etenee:
1. Ota yhteyttä sähköpostitse tai soita minulle. Pyydän sinulta taustatietoja kohteesta, jonka perusteella laadin kirjallisen tarjouksen pihasuunnittelusta. Tarjouksessa näkyy suunnittelutyön laajuus, sisältö, aikataulu ja maksuerät.2. Suunnittelu alkaa aina pihakäynnillä. Kartoitan ja valokuvaan tontin sekä lähetän vielä käynnin jälkeen tarkentavia kysymyksiä sähköpostiisi. Laadin ensimmäisen luonnoksen, johon saat tutustua rauhassa. Voimme pitää etäpalaverin, jossa luonnos käydään yhdessä läpi. Teen suunnitelmaan tarvittavat muutokset ja jatkan suunnitelman loppuun sovitussa laajuudessa.
3. Toimitan valmiin luonnoksen tai tarkemman pihasuunnitelman sinulle sähköisenä tai paperisena. Pihatyöt voi alkaa!
Hinnasto:
PIHAKÄYNTI 1,5h- Keskustellaan paikan päällä pihasi ongelmakohdista ja muutostarpeista. Saat uusia ideoita pihasi käyttöön ja viihtyvyyteen.
- Neuvon kasvien ja materiaalien valinnassa.
- Annan ohjeita rakentamiseen ja kasvillisuuden hoitoon.
- Voit kirjata itse muistiinpanoja neuvontakäynnin aikana.
- Ei sisällä kirjallista yhteenvetoa pihakäynnistä.
PIHAKÄYNNIN HINTA: 250€ (+matkakulut, jos kohde sijaitsee yli 50 km:n päässä)
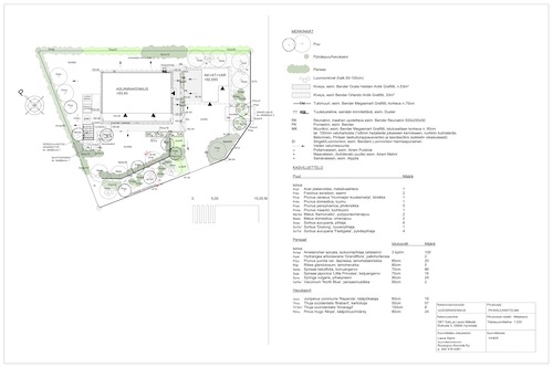
PIHAN LUONNOSSUUNNITELMA
- Sisältää pihakäynnin ja lähtötietojen kartoittamisen
- Pihasta yhtenäinen, toimiva kokonaisuus
- Luonnoksessa hahmotellaan pihan toiminnot ja muotokieli sekä esitetään kasvi- ja materiaaliesimerkkejä
- Suunnitteluohjelmalla puhtaaksi piirretty suunnitelma (2D)
- Liitteenä kohteeseen sopivia ideakuvia
- Luonnoksen avulla voit rakentaa pihan itse
LUONNOSSUUNNITELMAN HINTA:
850€ – 1800€
Tarkempi PIHASUUNNITELMA
- Luonnoksen pohjalta tarkempi suunnitelma
- Istutettava kasvillisuus / kasviluettelo
- Kattava pintamateriaaliluettelo
- Rakenteiden tyyppi / materiaalit
- Valaistusratkaisut
- Hulevesijärjestelyt
- Tarvittavat mitat ja työohjeita
- 3D kuvia
PIHASUUNNITELMAN HINTA: 1800-4200€
Yhteystiedot
Laura Salmisuunnitteluhortonomi / maisemasuunnittelija
myynti.ruusupuu(at)gmail.com
puh. 040 518 4361
Ota yhteyttä ja kysy lisää!
Instagramissa löydät minut tililtä la_visuel






